Top 50+ Mẫu Tủ Bếp Hình Chữ L Đẹp, Hiện Đại
Với độ bền cao, sang trọng, giá thành rẻ và lắp đặt nhanh chóng, mẫu tủ bếp chữ L nhôm kính ngày càng được nhiều người quan tâm và lựa chọn. Dưới đây là tổng hợp các mẫu tủ bếp chữ L nhôm kính đẹp mà bạn có thể tham khảo. Từ đó giúp bạn đưa ra sự lựa chọn tốt nhất cho ngôi nhà của mình.
Mục lục
- 1 Tủ bếp hình chữ L là gì? Ưu nhược điểm
- 2 Các mẫu tủ bếp hình chữ l đẹp, hiện đại
- 2.1 Mẫu tủ bếp chữ L nhôm kính giả gỗ sang trọng
- 2.2 Mẫu tủ bếp chữ L nhôm kính cường lực hiện đại
- 2.3 Mẫu tủ bếp chữ L nhôm kính màu trắng sứ đẹp
- 2.4 Mẫu tủ bếp nhôm kính chữ L sơn tĩnh điện
- 2.5 Mẫu tủ bếp chữ L nhôm đẹp kiểu vân gỗ
- 2.6 Mẫu tủ bếp chữ L nhựa Acrylic
- 2.7 Mẫu tủ bếp đẹp chữ L gỗ công nghiệp
- 3 Mẫu tủ bếp chữ L phù hợp với không gian nào?
- 4 Kích thước tủ bếp chữ L tiêu chuẩn
- 5 Những lưu ý khi mua tủ bếp chữ L nhôm kính
Tủ bếp hình chữ L là gì? Ưu nhược điểm
Tủ bếp hình chữ L là một thiết kế phổ biến giúp tối ưu không gian trong góc nhà bếp, với hai cạnh vuông góc ôm sát tường, tạo hình giống chữ L. Một cạnh thường dài hơn, một cạnh ngắn hơn, giúp tận dụng tối đa diện tích mà vẫn đảm bảo lối đi rộng rãi và tiện lợi. Thiết kế này còn được gọi là tủ bếp góc, phù hợp với nhiều phong cách nội thất và dễ dàng bố trí các khu vực nấu nướng, rửa, lưu trữ.
Ưu điểm:
- Tận dụng tối đa không gian góc bếp, tạo cảm giác rộng rãi và tiện nghi hơn so với tủ bếp thẳng.
- Phân chia hợp lý các khu vực nấu nướng, rửa và lưu trữ theo tam giác bếp chuẩn, thuận tiện khi nấu ăn.
- Ngăn tủ góc sâu giúp lưu trữ nhiều vật dụng mà không làm lộn xộn không gian.
- Thiết kế hiện đại, dễ phối hợp với nhiều phong cách nội thất, tạo điểm nhấn cho căn bếp.
Nhược điểm:
- Cạnh tủ trong góc khó tiếp cận, cần phụ kiện ray trượt hoặc cánh xoay để tận dụng tối đa không gian.
- Chi phí thi công có thể cao hơn tủ bếp thẳng do thiết kế góc và phụ kiện đi kèm.
- Cần tính toán kỹ lối đi và bố trí xung quanh để tránh cảm giác chật chội.
- Không phù hợp với bếp quá hẹp nếu không gian không đủ cho một cạnh chữ L.

Các mẫu tủ bếp hình chữ l đẹp, hiện đại
Theo xu hướng thị trường hiện nay, mẫu tủ bếp đẹp bằng nhôm kính luôn được ưu tiên lựa chọn.
Mẫu tủ bếp chữ L nhôm kính giả gỗ sang trọng
Tủ bếp nhôm giả gỗ chữ L được thiết kế 2 loại đó là nhôm sơn tĩnh điện và nhôm omega cao cấp. Những mẫu tủ bếp được thiết kế với chất liệu nhôm kính màu vân gỗ luôn đòi hỏi phải có màu sơn đẹp và tỷ lệ giống gỗ thật cao. Vì vậy, mẫu tủ bếp nhôm omega sẽ là sự lựa chọn hoàn hảo mà bạn nên cân nhắc.


Mẫu tủ bếp chữ L nhôm kính cường lực hiện đại
Thông thường, nhôm kính cường lực được sản xuất thông qua quá trình gia nhiệt đặc biệt, làm cho sản phẩm có cường độ cao và chống va đập tốt. Bên cạnh đó, cánh tủ kính cường lực còn có vẻ đẹp và độ trong suốt đặc biệt, giúp tạo cảm giác rộng rãi cho khu vực bếp.


Mẫu tủ bếp chữ L nhôm kính màu trắng sứ đẹp
Khi tủ bếp chữ L kết hợp với nhôm kính và màu trắng sứ sẽ tạo ra một thiết kế bếp đẹp và hiện đại. Mặt tủ và cửa tủ được thiết kế bằng nhôm kính màu trắng sứ, giúp bề mặt bóng bẩy và sáng loáng. Hơn nữa, việc sử dụng tủ bếp chữ L màu trắng sẽ mang lại cảm giác không gian phòng được thông thoáng và rộng rãi hơn.
Tay nắm và các chi tiết khác trên tủ bếp chữ L thường được làm từ thép không gỉ hoặc nhôm nhằm tạo ra sự tương phản và tính thẩm mỹ. Ngoài ra, các phụ kiện như bồn rửa, vòi nước và bếp từ cũng được lựa chọn kỹ càng để tạo nên một tổng thể hài hòa.


Mẫu tủ bếp nhôm kính chữ L sơn tĩnh điện
Tủ bếp nhôm kính chữ L sơn tĩnh điện được tùy chỉnh với nhiều màu sắc như: màu trắng, đen, xám, hay màu tông nổi bật khác. Hoa văn và họa tiết có thể được thiết kế theo phong cách truyền thống hoặc hiện đại.
Mẫu tủ bếp nhôm kính sơn tĩnh điện chữ L thường được thiết kế với nhiều ngăn kéo và kệ lưu trữ nhằm giúp gia chủ có thể dễ dàng sắp xếp đồ dùng bếp gọn gàng và hợp lý.


Mẫu tủ bếp chữ L nhôm đẹp kiểu vân gỗ
Tuy là sản phẩm còn mới trên thị trường nhưng mẫu tủ bếp nhôm chữ L kiểu vân gỗ được đánh giá cao cả về thẩm mỹ lẫn chất lượng. Với chất liệu giả gỗ, đây sẽ là sự lựa chọn hoàn hảo để tạo ra không gian bếp ấm cúng và sang trọng.


Mẫu tủ bếp chữ L nhựa Acrylic
Tủ bếp Acrylic ngày càng được ưa chuộng nhờ vẻ ngoài bóng sang trọng, chống nước, dễ lau chùi và độ bền cao. Các loại phổ biến gồm: tủ inox, nhôm, nhựa hoặc gỗ công nghiệp cánh Acrylic. Trong đó, thiết kế hình chữ L được đánh giá cao vì tiết kiệm diện tích, bố trí linh hoạt và phù hợp với nhiều không gian. Bề mặt nhẵn bóng giúp vệ sinh dễ dàng, giữ bếp luôn sạch đẹp và đảm bảo sức khỏe gia đình.


Có thể bạn quan tâm>> Cánh tủ bếp Acrylic là gì? Ưu điểm của cánh tủ bếp Acrylic
Mẫu tủ bếp đẹp chữ L gỗ công nghiệp
Thiết kế chữ L giúp tận dụng tối đa diện tích góc, tạo không gian nấu nướng rộng rãi và thuận tiện. Kết hợp cùng chất liệu gỗ công nghiệp phủ Acrylic hoặc Melamine, mẫu tủ bếp mang đến vẻ đẹp sang trọng, hiện đại, dễ lau chùi và chống ẩm hiệu quả. Đây là lựa chọn lý tưởng cho các căn hộ chung cư, nhà phố cần sự gọn gàng, thẩm mỹ và bền bỉ theo thời gian.


Mẫu tủ bếp chữ L phù hợp với không gian nào?
Tủ bếp nhôm kính đơn giản nên có thể phù hợp với mọi loại không gian, kể cả những khu vực bếp có diện tích vừa và nhỏ. Hơn nữa, mẫu tủ bếp chữ L nhôm kính đẹp còn được thiết kế theo 2 cạnh góc vuông thuận tiện khi mở ra, tận dụng tối ưu góc chết hoặc góc cột của khu vực nấu ăn.
Không chỉ được thiết kế phù hợp với nhiều không gian mà mẫu tủ bếp chữ L nhôm kính đẹp còn giúp tiết kiệm không gian, tạo cảm giác thoải mái, thoáng đãng hơn mỗi khi vào bếp.

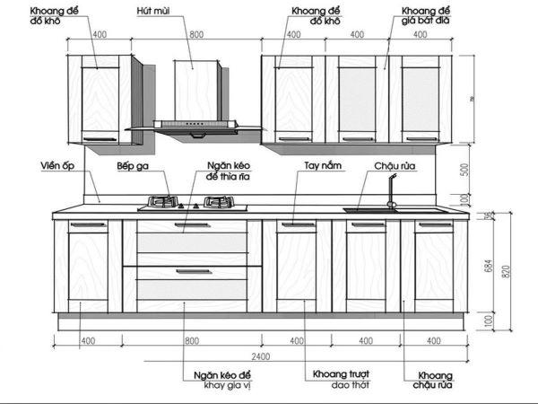
Kích thước tủ bếp chữ L tiêu chuẩn
Để thiết kế bếp chữ L đúng chuẩn phong thủy và đảm bảo công năng tối ưu, việc đầu tiên cần làm là đo đạc chính xác chiều dài – chiều rộng không gian bếp. Đồng thời, cần xác định rõ vị trí cửa ra vào, cửa sổ và các yếu tố cố định khác để tránh bố trí bị vướng, kém thuận tiện.
Ngoài ra, số lượng người sử dụng thường xuyên trong gia đình cũng là yếu tố quan trọng giúp xác định kích thước bếp phù hợp.

Kích thước tiêu chuẩn của bếp chữ L
Tủ bếp chữ L có cấu trúc gồm 2 cạnh vuông góc – một dài, một ngắn. Tùy vào diện tích căn bếp mà kích thước có thể linh hoạt điều chỉnh. Tuy nhiên, để đảm bảo tỷ lệ cân đối và thuận tiện sử dụng, nên tuân theo các thông số gợi ý sau:
|
Hạng mục |
Kích thước tiêu chuẩn |
|
Chiều dài cạnh ngắn |
Tối thiểu 1,5 m |
|
Chiều dài cạnh dài |
Từ 3 – 3,5 m |
|
Chiều cao tổng thể tủ bếp |
220 – 225 cm |
|
Chiều cao tủ bếp dưới |
81 – 86 cm |
|
Chiều rộng mặt bếp |
60 – 65 cm |
|
Chiều cao tủ bếp trên |
70 – 80 cm |
|
Chiều sâu tủ bếp trên |
35 cm |
|
Khoảng cách giữa tủ trên và dưới |
60 – 65 cm |
|
Lối đi giữa các khu vực trong bếp |
90 – 150 cm |
|
Chiều cao bàn đảo (nếu có) |
Bằng tủ bếp dưới (~81 – 86 cm) |
|
Chiều rộng tối thiểu của bàn đảo |
50 cm |
|
Kích thước phổ biến của cánh tủ |
30 cm, 40 cm, 60 cm, 80 cm |
|
Khu vực để bếp nấu |
Rộng từ 70 – 75 cm |
|
Máy hút mùi (tùy chọn theo loại) |
60 cm, 70 cm, 90 cm |
Những lưu ý khi mua tủ bếp chữ L nhôm kính
Để đảm bảo có được một mẫu tủ bếp đẹp hình chữ L bằng nhôm kính ưng ý, bạn nên lưu ý một số yếu tố chính sau:
- Chọn kích thước phù hợp: Đo chính xác không gian bếp, tính toán kỹ vị trí cửa để tủ vừa vặn, tiện sử dụng.
- Đánh giá giá và chất lượng: So sánh các vật liệu, phụ kiện và quy trình sản xuất để chọn tủ bền, đẹp với giá hợp lý.
- Chọn nhà cung cấp uy tín: Lựa chọn đơn vị chuyên nghiệp, kinh nghiệm để đảm bảo tư vấn đúng, vật liệu chuẩn và lắp đặt an toàn, nhanh chóng
Trên đây là những thông tin về mẫu tủ bếp chữ L nhôm kính đẹp mà bạn có thể tham khảo. Đừng quên theo dõi những thông tin hữu ích mà chúng tôi chia sẻ trên trang web nhé! Nếu bạn cần phụ kiện nẹp nhôm để làm tủ bếp hãy liên hệ với TRANG TRÍ NỘI THẤT GIA THỊNH để được tư vấn lựa chọn sản phẩm phù hợp nhé!




